114-116年朝興國小活動中心廁所整修工程計畫

上一則公告 下一則公告

一般公告 / 張貼者 總務主任兼資訊組長    


張貼日期: 2025-12-23 11:23:27  點閱:94


114-116年朝興國小活動中心廁所整修工程計畫

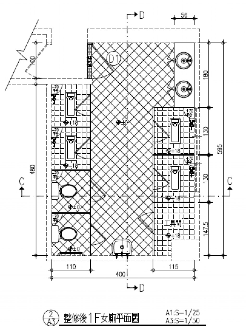
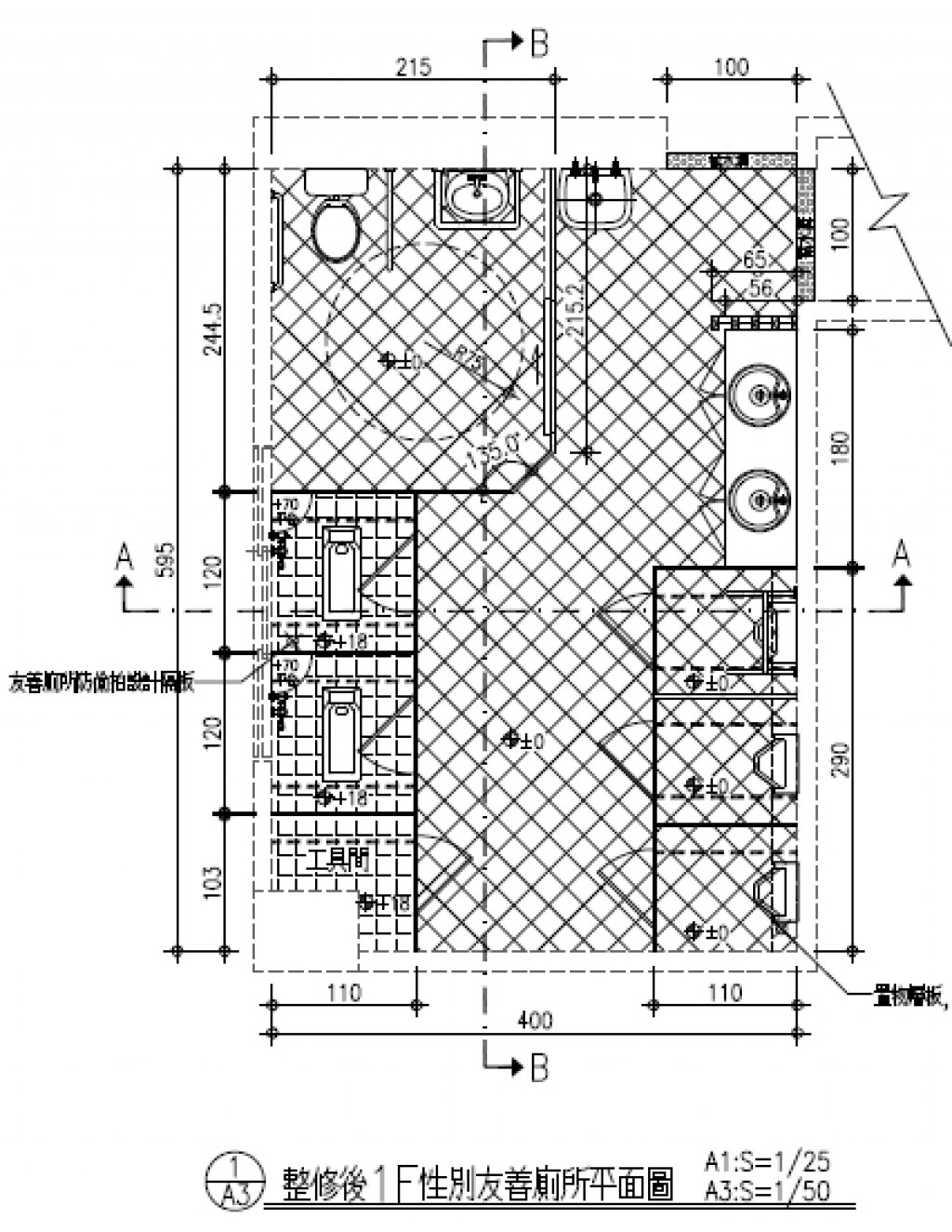
本校預計於115年度進行活動中心廁所整修工程,將整修性別友善廁所及女廁各一間,相關整修後平面圖如附件。

設計概念主要是以明亮、整潔、安全、性平,這四線為主軸,希望讓每一位使用活動中心的孩子與訪客都有賓至如歸的感覺。


相關照片